◆センチュリー21ライズワン◆

>>PC&スマホサイトへ
下へ
物件詳細(売買)

2号棟 外観
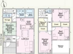
2号棟 間取り 建築物省エネルギー性能表示 南側道路4.7m 東側道路3.6m 現地写真 区画図 3台駐車可能 モニター付きインターホン 画像10 日当り良好な明るいリビング 夏は涼しく冬は暖かい畳で快適生活 料理をしながら会話を楽しめる対面キッチン 収納力と機能性にすぐれた洗面台 1日の疲れをいやす浴室は1坪以上 温水洗浄便座できれいさっぱり 階段 寝室・子供部屋に最適な明るい洋室 全個室にクローゼット有り 窓付き換気OKの納戸
【新築一戸建て】Gradlegarden瑞穂市野田新田 2号棟(全2棟)
東海道本線 穂積 26分
岐阜県瑞穂市野田新田(地図)

■南西角地、日当り良好 ■急な雨でも安心、インナーバルコニー ■2帖のテレワークルームは納戸としても利用可能 ■並列駐車5台可能 ■便利な全居室収納スペース付

価格:2,190万円(税込)

建物面積:97.60m2
土地面積:223.97m2
間取り:4LDK
階数:2階建
建物構造:木造
築年月:2025/11

現況:新築
建ぺい率:70%
容積率:192%
土地権利:所有権
建築確認番号:第HPA-25-08736-1号
駐車場:有 (5台)
学校:牛牧小学校/穂積中学校

物件コード:102401-7566
取引態様:一般
公開日:2025/11/20
広告有効期限:2025/12/21

0584-71-9421
物件のお問合せ
お問合せにあたってのご注意

上へ

トップページ

(c)株式会社ライズワン