Gradlegarden瑞穂市野田新田 1号棟(全2棟)(売買 新築一戸建て) | 瑞穂市野田新田 | 大垣市、西濃エリアの不動産探し、分譲住宅、注文住宅建築をお考えの方【センチュリー21ライズワン】不動産、建築のスペシャリストのお店です

Gradlegarden瑞穂市野田新田 1号棟(全2棟) | 瑞穂市野田新田の不動産物件

■南道路、日当り良好 ■急な雨でも安心、インナーバルコニー ■季節物スッキリ片付く2帖のWIC付き ■人造大理石トップボードで、お手入れがラクなキッチン
【新築一戸建て】 新築 駐車場あり
価格 1,990万円 (税込)
東海道本線 穂積駅 徒歩26分
スマホ表示
物件コード:102401-7565
所在地 建物面積
土地面積
間取り 築年月
岐阜県瑞穂市野田新田 98.82m2
163.76m2
4LDK 2025/11

物件基本情報

▲1号棟 外観イメージ
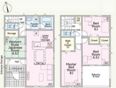
▲1号棟 間取り
物件種目 新築一戸建て
物件名称 Gradlegarden瑞穂市野田新田 1号棟(全2棟)
所在地 岐阜県瑞穂市野田新田
交通
東海道本線 穂積駅 徒歩26分
階数 2階建
建物構造 木造
建ぺい率/容積率 70% / 191%
駐車場 有 (3台)
学校 牛牧小学校 / 穂積中学校
設備・条件
  • ガス:個別プロパン
  • 汚水:個別浄化槽
  • 水道:公営水道
  • フローリング
  • システムキッチン
  • シャンプードレッサー
  • 追い焚き
  • 洗浄便座
  • ガスコンロ
  • Wクローゼット
  • 床下収納
  • TVドアホン
  • コンロ三口
  • カウンターキッチン
  • 浴室乾燥機
  • シャワー
  • バルコニー
  • 設計住宅性能評価付
  • 浄水器
  • 浴室1坪以上
  • オートバス
  • トイレ2ヶ所
  • 複層ガラス
  • 建設住宅性能評価書(新築時)
センチュリー21ライズワン
0120-575-021
携帯電話・PHSからは 0584-71-9421

画像・写真

  • 建築物省エネルギー性能表示
    建築物省エネルギー性能表示
  • 南側道路4.7m
    南側道路4.7m
  • 東側道路3.6m
    東側道路3.6m
  • 現地写真
    現地写真
  • 現地写真
    現地写真
  • 区画図
    区画図
  • 3台駐車可能
    3台駐車可能
  • モニター付きインターホン
    モニター付きインターホン
  • 日当り良好な明るいリビング
    日当り良好な明るいリビング
  • 料理をしながら会話を楽しめる対面キッチン
    料理をしながら会話を楽しめる対面キッチン
  • 収納力と機能性にすぐれた洗面台
    収納力と機能性にすぐれた洗面台
  • 1日の疲れをいやす浴室は1坪以上
    1日の疲れをいやす浴室は1坪以上
  • 温水洗浄便座できれいさっぱり
    温水洗浄便座できれいさっぱり

周辺地図

地図を表示中...
ストリートビュー未対応エリアです。

物件詳細情報

物件用途 居住用 地目 宅地
間取り詳細 LDK16畳(1F)、和4.5畳(1F)、洋8畳(2F)、洋6.5畳(2F)、洋6畳(2F) 都市計画 市街化区域
建物向き 用途地域 第一種住居地域
土地面積基準 公簿 接道 公道 南 幅員4.7m (接面8.5m)
公道 東 幅員3.6m (接面8.5m)
土地権利 所有権 私道面積 -
借地条件 - 道路位置指定 -
地代 - 不適合接道 -
建築確認番号 第HPA-25-08735-1号 セットバック -
現況 建築中 国土法届出 不要
引渡時期 相談 取引態様 一般
設備その他 -
特記事項 22条指定区域・宅地造成工事規制区域
備考 -
公開日 2025/09/29 広告有効期限 2025/10/30
担当者 福本 大作
電話でお問い合わせ
センチュリー21ライズワン 店舗情報
[所在地] 岐阜県大垣市楽田町2丁目1727番地6
[営業時間] 9:30~17:30 定休日:毎週水曜日・祝日
[担当] 福本 大作
0120-575-021
携帯電話・PHSからは 0584-71-9421