Gradlegarden大垣市笠木町 1号棟(全4棟)(売買 新築一戸建て) | 大垣市笠木町 | 大垣市、西濃エリアの不動産探し、分譲住宅、注文住宅建築をお考えの方【センチュリー21ライズワン】不動産、建築のスペシャリストのお店です

Gradlegarden大垣市笠木町 1号棟(全4棟) | 大垣市笠木町の不動産物件

■北西角地、日当り良好 ■全居室南向き ■通勤、通学に便利な北大垣駅まで徒歩8分 ■駐車並列4台可能 ■南面LDK+隣接洋室、間仕切りを開放すれば計21帖に
【新築一戸建て】 新築 駐車場あり
価格 1,990万円 (税込)
養老鉄道 北大垣駅 徒歩8分
スマホ表示
物件コード:102401-7575
所在地 建物面積
土地面積
間取り 築年月
岐阜県大垣市笠木町 95.18m2
170.78m2
4LDK 2025/12

物件基本情報

▲1号棟 外観
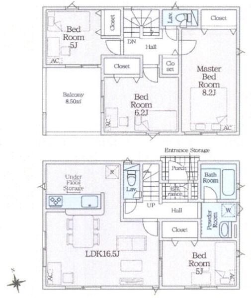
▲1号棟 間取り
物件種目 新築一戸建て
物件名称 Gradlegarden大垣市笠木町 1号棟(全4棟)
所在地 岐阜県大垣市笠木町
交通
養老鉄道 北大垣駅 徒歩8分
階数 2階建
建物構造 木造
建ぺい率/容積率 70% / 160%
駐車場 有 (4台)
学校 北小学校 / 北中学校
設備・条件
  • ガス:都市ガス
  • 汚水:公共下水
  • 水道:公営水道
  • フローリング
  • システムキッチン
  • シャンプードレッサー
  • 追い焚き
  • 洗浄便座
  • ガスコンロ
  • 床下収納
  • TVドアホン
  • コンロ三口
  • カウンターキッチン
  • 浴室乾燥機
  • シャワー
  • バルコニー
  • 日当り良好
  • 設計住宅性能評価付
  • 浄水器
  • 浴室1坪以上
  • オートバス
  • トイレ2ヶ所
  • 複層ガラス
  • 建設住宅性能評価書(新築時)
センチュリー21ライズワン
0120-575-021
携帯電話・PHSからは 0584-71-9421

Gradlegarden大垣市笠木町 1号棟

画像・写真

  • 建築物省エネルギー性能表示
    建築物省エネルギー性能表示
  • 北側道路3.5m
    北側道路3.5m
  • 西側道路3.5m
    西側道路3.5m
  • 3台駐車可能
    3台駐車可能
  • 区画図
    区画図
  • 分譲地全体
    分譲地全体
  • モニター付きインターホン
    モニター付きインターホン
  • 気持ちよく家族を迎えられる玄関収納付き
    気持ちよく家族を迎えられる玄関収納付き
  • 日当り良好な明るいリビング
    日当り良好な明るいリビング
  • 1階洋室
    1階洋室
  • IHクッキングヒーター
    IHクッキングヒーター
  • 1日の疲れをいやす浴室は1坪以上
    1日の疲れをいやす浴室は1坪以上
  • 収納力と機能性にすぐれた洗面台
    収納力と機能性にすぐれた洗面台
  • 温水洗浄便座できれいさっぱり
    温水洗浄便座できれいさっぱり
  • 階段
    階段
  • 寝室・子供部屋に最適な明るい洋室
    寝室・子供部屋に最適な明るい洋室
  • 全個室にクローゼット有り
    全個室にクローゼット有り
  • インナーバルコニーで急な雨でも安心
    インナーバルコニーで急な雨でも安心

周辺地図

地図を表示中...
ストリートビュー未対応エリアです。

物件詳細情報

物件用途 居住用 地目 宅地
間取り詳細 LDK16.5畳(1F)、洋5畳(1F)、洋8.2畳(2F)、洋6.2畳(2F)、洋5畳(2F) 都市計画 市街化区域
建物向き 用途地域 第一種住居地域
土地面積基準 公簿 接道 公道 北 幅員3.5m (接面12.8m)
公道 西 幅員3.5m (接面12.8m)
土地権利 所有権 私道面積 -
借地条件 - 道路位置指定 -
地代 - 不適合接道 -
建築確認番号 第HPA-25-09663-1号 セットバック -
現況 新築 国土法届出 不要
引渡時期 相談 取引態様 一般
設備その他 -
特記事項 22条指定区域・宅地造成工事規制区域
備考 -
公開日 2025/12/18 広告有効期限 2026/01/18
担当者 福本 大作
電話でお問い合わせ
センチュリー21ライズワン 店舗情報
[所在地] 岐阜県大垣市楽田町2丁目1727番地6
[営業時間] 9:30~17:30 定休日:毎週水曜日・祝日
[担当] 福本 大作
0120-575-021
携帯電話・PHSからは 0584-71-9421